西松建設とリアルゲイト初の協働プロジェクト 北参道駅直結ビルをフレキシブルなクリエイティブオフィスにリノベーション 「STANTION kitasando」が2021年12月オープン
お知らせ2021年08月18日
当社と、都心部を中心に60棟を超えるクリエイティブオフィスの企画・運営を手掛ける株式会社リアルゲイト(本社:東京都渋谷区、代表取締役:岩本 裕、以下「リアルゲイト」)は、初の協働プロジェクトとして、北参道駅直結ビルにクリエイティブオフィス「STANTION kitasando(スタンション北参道)」を2021年12月にオープンします。
■オフィシャルサイト: https://stantion.jp/
1.協業の背景、STANTION kitasandoについて
北参道駅直結、築13年11階建てのビル1棟を、西松建設がバリューアップ目的で2020年12月に取得。北参道・千駄ヶ谷を含む渋谷エリア内で、24棟のクリエイティブオフィスを手掛けるリアルゲイトが、本物件の企画・設計・運営管理業務を担います。
1階にスターバックス、2階以上をアパレル会社のショールーム兼事務所として利用されていたビルを1棟リノベーション。各階の専有部はフロア毎に内装を自由にカスタマイズ可能にし、入居企業が既成概念にとらわれない、オーダーメイドな空間でクリエイティブな働き方を実現できるよう貸し出します。また、3層吹抜けの開放感あるエントランスは動線を改善し、木を基調とした洗練されたデザインにオリジナルサウンドを用いた演出など、来訪者への期待感を高める空間に一新します。
施設名の「STANTION」とは、station(駅)+stanchion(柱・支柱)を組み合わせ、これからの北参道駅を支える建物になるようにと意味を込めたものです。
高い天井高や視認性を活かし、オフィスだけではなく、サービスショップやショールームなど幅広い用途で利用可能な施設へと生まれ変わります。
2.専有部詳細
天井高2.6m~4.7m、明るく開放感のある専有部は必要最低限のインフラ設備を設置したシンプルな空間を提供。広々とした専用テラス付きフロア、メゾネット式で代々木公園を一望できる最上階のプレミアムフロアなど、様々なタイプをご用意しています。
企業アイデンティティを自由に反映できるオリジナルなオフィス空間創りを可能にすることで、より一層豊かなワークライフを創出します。![]()
3.入居企業独自の空間創りをサポート
内装に自社のアイデンティティを反映し、他社との差別化や自由な働き方を実現できるようサポートいたします。またご希望に応じて床や壁の仕上げ変更、トイレ増設、キッチン追加等の水回り工事まで、多様なオプションから工事内容をご選択いただけます。
多種多様な働き方に合わせて、オリジナリティのある空間創りが実現可能です。
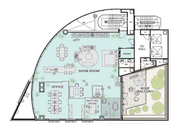
▲平面図・テナント内装イメージ
4.クリエイティブオフィス空間の概要
【区画】9区画
【面積】150.55㎡~273.59㎡
【内装仕上げ】床:タイルカーペット、OAフロア
壁:ボード白塗装、ガラスサッシ
天井:躯体表し(2階-4階)・ボード白塗装(5階-11階)
【設備】個別空調、換気設備、インターネット電話兼用空配管、コンセント、ライティングレール(2階~4階)、ベースライト(5階~11階)、専用化粧室(2階除く)、共用化粧室(2階)、専用ミニキッチン、専用バルコニー(一部フロアのみ)
5.物件概要
施設名称:STANTION kitasando (スタンション北参道)
所在地:東京都渋谷区千駄ヶ谷3-38-14
交通機関:東京メトロ副都心線「北参道駅」徒歩1分
構造・規模:鉄骨造陸屋根11階建
用途:店舗・事務所
延床面積:2,556.62㎡(773.38坪)
竣工年: 2008年1月
リノベーション竣工年:2021年12月(予定)




